HONE-长运平台-(中国区)官方直营注册登录平台! cyyl
手机:13450082237
电话:0769-22210391
传真:0769-22217692
网址:www.
邮箱:13450082237@163.com
地址:广东省东莞市东城街道桑园社区银贵路6号
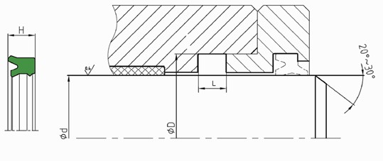
1.Hallite605活塞杆密封标准材料
密封环:聚氨酯PU

2.应用范围
主要用于重载行走机械和静压中的活塞杆和柱塞的密封,沟槽和直径尺寸分别符合ISO5597/1和ISO3320国际标准的要求。设计选用时可参考Trelleborg公司RU3系列、Parker公司的BS系列、DZ公司D-3系列标准。
3.特性及优点
1.易于安装;
2.极好地防止了外部空气的进入;
3.压缩变形小;
4.抗挤出;
5.耐冲击;
6.耐磨性极好;
7.适应于苛刻的工作条件;
8.提高了零压力下的密封性能;
9.密封唇口之间的压力介质而具有充分的润滑。
